Дополнительные помещения
В здании 10х10 по плану может находиться балкон, лоджия, терраса, веранда, гараж. Рассмотрим подробнее каждое помещение.
Балкон и лоджия
Балкон и лоджия могут выступать местом для отдыха, площадкой для небольшого садика. Устанавливают тренажеры, обзорную площадку для того, чтобы любоваться природой.
Веранда
В плане, где крыша сделана под мансарду, можно учесть маленькую веранду
Важно, чтобы веранда находилась с освещенной области пристройки. Ее часть оставляют открытой, чтобы отдыхать на свежем воздухе
Терраса
Двухэтажный жилой дом с мансардой и террасой – отличный выбор для большой семьи. Терраса придаст уникальности даже простому жилью. Ее лучше отделять от мансарды большими окнами и дверью. Это даст хорошее освещение комнате. На открытой террасе можно загорать, на закрытой – осуществить план зимнего сада. Хорошо смотрится терраса под навесом. Навес может быть сезонным и сниматься в хорошую погоду.
Гараж
Такой проект дома 10 на 10 с гаражом и мансардой позволит еще больше увеличить полезную площадь. Практически у каждого проживающего в коттедже есть автомобиль. Поэтому наличие такого помещения необходимо. Ниже представлено несколько примеров строений с гаражом.
Преимущества и недостатки домов 8 на 10
Главное преимущество подобных домов – их универсальность. Компактные строения удачно впишутся в загородный участок. Не менее органично они будут смотреться в условиях городской среды, где каждый см площади играет огромную роль.
Среди плюсов возведения подобного строения можно выделить:
- невысокие расходы на строительство – не требуется оборудование дорогого фундамента, траты на оплату труда рабочих и приобретение материалов относительно небольшие;
- высокая скорость возведения – весьма существенный нюанс для семей, вынужденных арендовать жилье;
- возможность экономить на коммунальных платежах, за счет сравнительно небольшой площади.

К недостаткам можно отнести все те же компактные габариты, которые не дают возможности создать несколько просторных комнат для каждого члена большой семьи. Такие дома подходят для семей, насчитывающих 3-4 человека.
С чего начать планировку?
Для начала следует определиться со своими потребностями. Если нужен домик для постоянного проживания, крайне желательно предусмотреть наличие котельной. В дачных домиках котельная не является обязательной, там можно ограничиться электрическими отопительными приборами.
Также обязательно надо учитывать количество членов семьи и их возраст. Семья из двух или трёх человек вполне может довольствоваться маленьким домиком 6Х6, в котором всего две комнаты.
А вот для комфортной жизни многодетного семейства нужен одноэтажный коттедж с большим количеством комнат. Исходя из этих факторов и следует проектировать дом.
Отопление одноэтажного дома
Способ отопления зависит от наличия инженерных сетей в месте строительства. Это обстоятельство также влияет на планировку.
Отлично, если можно подключиться к центральному отоплению, в этом случае не требуется дополнительного помещения.
Хороший вариант – подключение к газовой сети. Для газового котла необходима котельная с выходом непосредственно наружу и окном.
Возможна установка электрокотла, при этом возрастают расходы на электроэнергию.
Планировка одноэтажного дома с печкой на твердом топливе имеет свои особенности. Печь устанавливают в центральной части, чтобы равномерно обогревать все помещения.
Возможно совместить ее с водяным котлом и смонтировать систему отопления на весь контур. В этом случае печь располагают в котельной с отдельным входом, а рядом устраивают кладовую с запасом топлива.
Типовые модули архитектурного объекта
Существует масса готовых проектов домов, доработка которых будет минимальной, если вы хотите стать обладателем именно функционального и вместе с тем компактного жилья. Фотографии, отражающие типовую планировку такого строения, свидетельствуют о том, что для каждого элемента в объекте есть конкретное место. Это утверждение справедливо не только для таких очевидных вещей, как окна и двери. Предлагаются конкретные и очень детальные размеры каждого из помещений.
Проектировщик заранее рассчитывает параметры фундамента, конструкций стропильного типа, а также стен и, соответственно, всех необходимых перегородок. Кроме того, прямо на чертежи объекта наносятся схемы электрической проводки с указанием мест для розеток, выключателей, светильников
Важно понимать, что если желаемый план будущий владелец здания может набросать собственноручно, то с рабочими схемами этот прием совершенно не работает. Все данные должны быть максимально точными.
Вид сверху на типовую планировку дома 10 на 10. Что вы увидите на плане?
Что вы увидите на плане?
Разработанная профессионалом схема включает такие элементы:
- тип и габариты фундамента;
- способ монтажа стен;
- места монтажа оконных и дверных проемов;
- установка перегородочных конструкций;
- месторасположение систем коммуникации;
- тип кровли.
Дизайнер разработает для вас комфортный и функциональный интерьер
Рекомендации по эффективной организации пространства
Создать эффективную планировку жилья помогут рекомендации опытных дизайнеров:

Без выделения отдельного пространства для прихожей может получиться интересный дизайн

Необычные дизайнерские решения получаются при объединении нескольких помещений

В совмещенном санузле не обязательно использовать ванну, можно поставить душевую кабину

Навесные шкафы позволяют разгрузить пространство

Интересно можно оформить функциональное помещение
При создании функциональной и удобной планировки нужно правильно разместить общие комнаты. На фото планировки одноэтажного дома 10 на 10 можно увидеть интересные решения, которые можно использовать. Учитывая советы от профессионалов и секреты планировки, можно создать комфортное жилье для всех членов семьи.
Двухэтажный дом
В двухэтажном доме, который занимает площадку размером 6 на 9, может с комфортом расположиться большая семья. Второй уровень дома обычно отводят под спальную зону. Особенности планировки зависят от количества членов семьи и их образа жизни. Так, например, если в семье есть взрослые дети, то можно предусмотреть две гостиные, чтобы представитель разных поколений могли отдыхать и принимать гостей, не мешая друг другу. А для семей, в которых есть пожилые люди, рекомендуется одну из спален размещать на первом этаже.
Важный элемент двухэтажного строения – это межэтажная лестница. Она занимает пространство на первом и на втором этаже. Часто при планировке небольших коттеджей, с целью сэкономить место, проектируют узкие неудобные лестницы, иногда даже винтовые. Однако нужно помнить о том, что все конструкционные элементы жилища должны быть в первую очередь надежными и безопасными. Поэтому лучше устанавливать удобную маршевую лестницу с широкими ступенями. А для экономии пространства можно обустроить в нише под ступенями шкаф или хранилище для бытовых принадлежностей.
Планировка двухэтажного дома 6 на 9Источник drevolog.ru
Варианты планировки домов размером 10 х 12 м
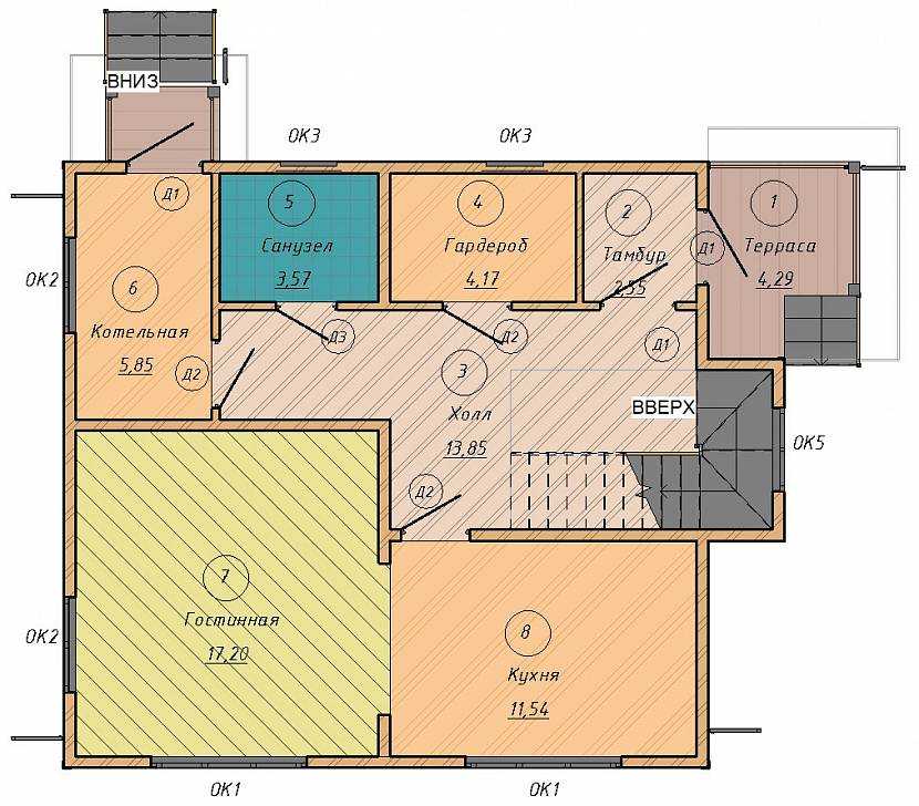
Планировка дома с двумя входами
Наличие двух отдельных входов в строение очень удобно. Главный из них, который оборудован крыльцом, позволяет войти в дом и попасть в топочную. Тамбур обеспечивает лучшую изоляцию от проникновения холодного воздуха в морозы. Кухня совмещена с гостиной и столовой. При желании можно установить перегородки, например, отгородить кухню барной стойкой. Для отдыха предусмотрены две спальные комнаты. Для размещения одежды предназначена отдельная гардеробная.
Проект дома с двумя выходами
Таблица. Экспликация помещений.
| № | Помещение | Площадь, кв. м |
|---|---|---|
| 1 | Тамбур | 3,2 |
| 2 | Холл | 11,8 |
| 3 | Гардеробная | 4,6 |
| 4 | Санузел | 6,3 |
| 5 | Спальня №1 | 16,7 |
| 6 | Спальня №2 | 13,9 |
| 7 | Кухня, столовая, гостиная | 31,3 |
| 8 | Тех. помещение (топочная) | 9,5 |
Дом с террасой
Предлагаемая планировка отличается удобством. В доме будут созданы хорошие условия, необходимые для небольшой семьи. Все жизненно важные помещения предусмотрены. В гостиной можно установить стол для совместных обедов и ужинов. Если в доме остались на ночь гости, можно разместить их там на раскладном диване. Большие окна в жилых комнатах наполняют пространство солнечным светом. В хорошую погоду можно открыть раздвижные стеклянные двери в гостиной и объединить ее с террасой для проведения досуга.
Проект дома с террасой
Выглядеть строение может, например, так.
Пример такого дома
При желании есть возможность отделать мансарду для обустройства дополнительных помещений.
Дом с большим количеством спальных комнат
Предлагаемый вариант устройства жилья хорош тем, что в доме могут проживать несколько поколений семьи. Очень просторные спальные комнаты, наличие двух санузлов, большая столовая для совместных трапез обеспечивают комфорт для домочадцев.
Проект дома с многочисленными спальнями
Однако в такой планировке есть свои нюансы, которым многим могут не понравиться. В доме не предусмотрено вспомогательных помещений, а для совместного отдыха отведена гостиная довольно скромных габаритов.
Жилое строение с гаражом
Обустройство мансарды позволяет значительно расширить возможности по размещению помещений различного назначения. В таком строении на первом этаже может находиться очень просторная гостиная, кухня, также имеющая достаточно удобные размеры, и различные хозяйственные комнаты. Но изюминкой проекта становится встроенный в здание гараж для хранения одного автомобиля. Помимо этого, рядом с ним можно оборудовать небольшую мастерскую.
Проект дома с гаражомПланировка такого дома
А на мансардном этаже появляется возможность расположить три жилые комнаты, которые могут использоваться по разному назначению: в качестве спальни или, например, детской. В огромном санузле можно без проблем разместить различное сантехническое оборудование.
Планировка мансарды
Каркасный дом с мансардой
Полезная площадь представленного строения за счет мансарды увеличивается до 219 кв. м. Такой площади достаточно для обеспечения условий для жизни большой семьи.
Проект каркасного дома с мансардой
На первом этаже расположен стандартный набор необходимых помещений. Все они отличаются просторностью. Дополнительно оборудована спальная комната. Она предназначена для тех, кому на второй этаж подниматься тяжело, или для гостей.
Экспликация помещений
Второй этаж отдан под спальни и санузел. Однако такие габариты комнат не всегда нужны. При необходимости можно внести изменения в планировку. Дом отличается простотой, но жить в нем удобно.
Экспликация помещений мансардного этажа
Одноэтажные дома могут быть спроектированы по-разному. Также используются различные технологии строительства и материалы. Сегодня жилые строения возводят из железобетона, газо- или пенобетонных блоков, бруса, кирпича и т. д. Пользуются популярностью и каркасные постройки, особенно построенные по энергоэффективной технологии (например, по канадской или финской). Выбор остается за потребителем. Многое зависит от его желаний и возможностей.
Дом с мансардой
Очень распространенный вариант загородного жилья сегодня – это мансардный дом 6 на 9 с террасой, план которого включает встроенный гараж, это конечно не планировка дома 9 на 9, но здесь уже побольше возможностей обустроить уют, чем в просто одноэтажном. Такой коттедж максимально функционален. Он не так много весит, как дом с двумя полноценными этажами, и поэтому его можно построить на недорогом упрощенном фундаменте. Кроме того, высокая мансардная кровля и пристройка отлично дополняют экстерьер здания, делая его более оригинальным и солидным.
Жилая мансарда обеспечивает домовладельцам сразу несколько преимуществ:
- повышает эстетичность здания;
- позволяет самым экономичным способом увеличить количество полезных квадратных метров;
- раскрывает широкие возможности в оформлении дизайна интерьера.
Действительно, помещения в мансарде, со скошенной линией потолка, нестандартными пропорциями и верхним освещением получаются довольно уютными и стильными. Однако есть у мансарды и свои минусы:
- жилого пространства в мансарде меньше, чем в полноценном этаже;
- кровлю мансарды необходимо качественно утеплить и заизолировать от влаги, а это стоит не дешево;
- далеко не вся мебель подходит для мансардных комнат;
- мансардные окна, встраиваемые непосредственно в плоскость кровли, стоят намного дороже обычных.
Планировка дома 6 на 9 с мансардойИсточник sk-amigo.ru
Преимущества и недостатки домов с мансардой
Достоинства:
- Увеличение полезной площади из-за дополнительного уровня;
- Планировка комнаты, не подходящей для жилого помещения (мастерская, курилка);
- Характеристики строения предполагают снижение потери тепла через крышу;
- Строительство удастся совместить с проживанием людей на нижнем этаже;
- Доступность проведения коммуникаций;
- Придание зданию привлекательного облика, гармоничности;
- По сравнению с проектами двухэтажных зданий затраты на постройку меньше.
Минусы проекта:
Возможный недостаток естественного цвета. Это заметно, если свет проникает в помещение через окна, которые установлены вертикально
Потребуется купить особые окна, а это довольно дорого;
Важно правильно выбирать материалы для теплоизоляции, гидроизоляции, шумоизоляции. Если подойти к процессу безответственно, появятся проблемы.
Видео описание
Демонстрацию дома 6 на 9 на выставке смотрите в видео:
При оформлении небольшого дома нельзя допускать перенасыщения декораций или цветовых переходов, так как все это визуально «сожмет» и без того не слишком широкие фасады. Классические дома 6 на 9, особенно если это одноэтажные строения, желательно облицовывать светлыми материалами пастельных тонов. При облицовке минималистичных современных коттеджей стоит подобрать 2 или 3 цвета, но не дробить ими фасады. Например, одним цветом можно окрасить верх здания, а другим – низ. Или каждый из фасадов полностью выкрасить одним отдельным цветом.
Коротко о главном
Проекты размером 8х10 отличаются удобством и продуманностью с функциональной точки зрения. Они разнообразны по внешнему исполнению и планировочным решениям, а, благодаря компактности, вписываются в небольшие участки и оставляют достаточно места для рационального использования земли.
Популярностью пользуются проекты всех типов: одноэтажные, с мансардой или полноценным вторым этажом. Существуют общие принципы планировки, которые применяются во всех проектах 8 на 10. Вместе с тем, планировочные решения каждого типа имеют свои особенности, которые надо учитывать при выборе.
Варианты проектов небольших домов с мансардой
Несмотря на то, что при проектировании маленьких мансардных коттеджей используются одни и те же архитектурные правила, проекты таких зданий довольно разнообразны.
Проект дома с просторной террасой
Ниже приведен вариант проекта дома 6 на 6, запроектированный по всем правилам. Нижний этаж отведен под гостевую зону. В нем кухня, столовая и гостиная – это единое помещение. Предусмотрена кладовая рядом с кухней. В ней можно хранить запасы продуктов и бытовую технику, которая редко используется.
На втором этаже есть три спальни, но нет отдельного санузла. Такое решение снижает уровень комфорта проживания, зато позволяет сэкономить пространство. Из дома есть выход на террасу. Рядом с домом 6х6 с мансардой, планировка которого включает такую большую террасу, можно не строить беседку или летнюю кухню, так как функцию этих построек будет выполнять терраса.
Дом с просторной террасойИсточник hozsektor.ru
Проект дома с тремя спальнями и отдельной прихожей
В следующем проекте меньше места выделено под гостевую зону и больше под спальные помещения. Здесь тоже три спальни, но только две из них размещены в мансарде, а третья – на нижнем этаже. Кухня отнесена от гостиной-столовой. При желании ее можно отделить перегородкой.
В этом проекте не предусмотрен лестничный холл на первом этаже, и лестница располагается прямо в гостиной. В результате гостиная получается проходной, а лестница может стать очень стильным и оригинальным элементом ее интерьера.
На втором этаже, как и в предыдущем проекте, не запланирован санузел. Но его можно разместить в холле мансарды, напротив лестницы. Конечно, лучше, когда санузлы располагаются один над другим, однако ради комфорта можно подвести коммуникации в другое крыло дома.
Дом с отдельной прихожейИсточник stroi-complekt.ru
Проект дома с двумя спальнями
Этот дом семьи из двух или трех человек. Спальни располагаются в мансардном этаже. Кроме них в мансарде есть большая ванная комната и гардеробная. В данном проекте дома 6х6 с мансардой одна спальня запроектирована с балконом, что благоприятно сказывается как на комфорте жилища, так и на дизайне его фасадов.
Одно из достоинств этого проекта – удобное расположение кухни. Она находится в общем помещении с гостиной и столовой, но при этом для нее есть отдельная ниша с окном, и если установить хорошую вытяжку, то кухонные запахи не будут распространятся по всему гостевому помещению.
Дом имеет широкое остекление. Из гостиной полностью остекленный выход ведет на террасу. Один из фасад запланирован без окон. При необходимости к нему можно пристроить гараж или хозпомещение.
Дом с двумя спальнямиИсточник hozsektor.ru
Проект дома с лаконичной планировкой
Этот дом без террасы и второго выхода. Единственный вход оформлен компактным крыльцом. Такой вариант идеален для строительства на маленьком участке. Кухня-столовая здесь условно отделена от гостиной. Планировка позволяет отделить ее при помощи раздвижной перегородки.
Преимущество данного проекта – большая прихожая, выполняющая функцию лестничного холла. При такой планировке можно разместить шкаф для верхней одежды в пространстве под лестницей. Зайдя в дом можно сразу подняться в спальню, и не проходить через гостевое помещение.
Дом с простой лаконичной планировкойИсточник stroydombystro.ru
Проект дома с одной спальней
Компактное жилье для молодой семьи. На нижнем этаже студия свободной планировки. Она предназначена для кухни-столовой, гостиной и санузла. Весь подкровельный этаж отведен под одну большую личную комнату. Она может дополнительно выполнять функцию кабинета, домашнего кинотеатра, дневной зоны отдыха. Здесь же можно обустроить хозяйскую ванную и гардеробную.
Дом с одной спальнейИсточник uralleskom.ru
Проект деревянного дома с эркером
В данном варианте гостевая зона обозначена как студия свободной планировки. Обычно в эркерах располагают столовую. Остальная часть помещения занимается гостиной и кухней. Углы мансарды «съедаются» за счет формы кровли, поэтому верхние спальни получаются нестандартными по планировке. Это можно использовать при разработке дизайна интерьера. Например, в нише можно расположить спальное место или сделать небольшой домашний кабинет.
Деревянный дом с эркеромИсточник union-grupp.ru
Дом со сторонами 8х10
В доме со сторонами 8х10 метров очень удобно размещать не только функциональные помещения, но и продумать гардеробную, кладовую или подвал. Все это легко разместить при рациональном планировании перегородок.
В таком доме можно удачно разместить просторную кухню или даже сделать из нее столовую. В большинстве случаев совмещают кухню с гостиной между капитальными стенами. Спальню можно расположить параллельно столовой, часто для нее выбирают дальнюю часть дома.

План дома 80 кв.м с наличием дополнительных общественных комнатИсточник dachmir.ru
План дома с большим холлом, гостиной и кухней: 3 в 1Источник elbrus66.ru
Комнаты в доме при площади 80 кв.мИсточник karkasmaster.com
Дизайн дома 6 на 9
Чтобы придать частному дому максимально выразительный и запоминающийся внешний вид, проектировщики используют всевозможные архитектурно-декоративные элементы, такие как арочные оконные проемы, эркеры, башенки, сложные формы кровли и т. д. Но такие детали существенно повышают стоимость строительства дома.
Самый экономичный как в строительстве, так и в эксплуатации вариант коттеджа – это здание прямоугольной формы с простой двускатной крышей. Украсить прямоугольный дом можно двумя способами – при помощи цветового контраста или декорирования, например, лепниной. Первый способ идеален для зданий в современном стиле, второй – для классических домов.
Отделать фасады можно штукатуркой, пластиковыми панелями, сайдингом или лицевым кирпичом. Для отделки цоколя используется керамогранит, искусственный или натуральный камень.
Количество этажей
План можно создать для одноэтажной и двухэтажной постройки. Выбор проекта делается в зависимости от финансовых возможностей, количества членов семьи, личного вкуса.
Одноэтажный
В одноэтажном доме 10х10 по плану будет примерно 150 кв. м. жилого помещения. Дополнительное пространство применяется для обустройства зоны для отдыха. Если правильно использовать мансарду, функциональность здания возрастает вдвое
Особое внимание уделяется лестничному узлу. Доступ к мансарде не должен вызывать затруднений
Двухэтажный
Двухэтажное здание 10х10 с мансардой по площади около 250 кв. м. Под одной крышей могут поместиться несколько семей или поколений. Можно сделать большое помещение для отдыха и игровую зону для детей.
С цоколем
Дома 10х10 с мансардой и цоколем внешне очень компактны. Цена проекта будет ниже, чем у стандартных двухэтажных строений. Цоколь позволяет разгрузить план жилья. Он отличается от подвала тем, что менее чем на 50% находится под землей, не является частью основания. На цокольном этаже можно создать техническое помещение, бассейн с комнатой отдыха, мастерскую или кладовую.
